西宮市東鳴尾町2丁目 新築戸建

5,690万円

兵庫県西宮市東鳴尾町2丁目

阪神武庫川線「東鳴尾」駅徒歩3分

阪神本線「武庫川」駅徒歩13分

阪神本線「鳴尾・武庫川女子大前」駅徒歩21分

価格
5,690万円
間取り/建物面積
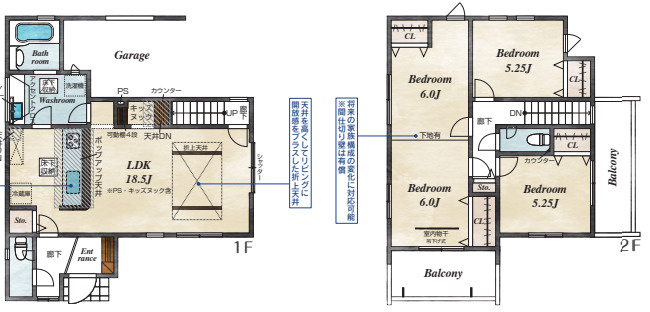
4LDK/111.10㎡
所在地
兵庫県西宮市東鳴尾町2丁目
築年
2026年3月(新築)
駐車
有(2台)
交通

阪神武庫川線東鳴尾」駅 徒歩3分

阪神本線武庫川」駅 徒歩13分

阪神本線鳴尾・武庫川女子大前」駅 徒歩21分

西宮市東鳴尾町2丁目 新築戸建の基本情報

物件名
西宮市東鳴尾町2丁目 新築戸建
価格
5,690万円
建物面積
111.10㎡
土地面積
30.86坪(102.02㎡)
築年月
2026年3月(新築)
総戸数
1戸
所在地
兵庫県西宮市東鳴尾町2丁目
交通

阪神武庫川線東鳴尾」駅 徒歩3分

阪神本線武庫川」駅 徒歩13分

阪神本線鳴尾・武庫川女子大前」駅 徒歩21分

西宮市東鳴尾町2丁目 新築戸建の詳細情報

設備条件
  • 閑静な住宅地
  • 駐輪場
  • バイク置場あり
  • 駐車2台可
設備(その他)
    -
駐車場/月額
有(2台)/0円 要確認
土地権利
所有権
国土法届出
不要
用途地域
第一種住居
取引態様
仲介
引渡し
相談
備考
神戸市灘区の物件をご検討の方は、不動産コンサルティングへお任せ下さい。

西宮市東鳴尾町2丁目 新築戸建のコメント(おすすめポイント)

不動産コンサルティングでは、神戸市灘区のマンション、戸建て物件を中心に、不動産の売買仲介を行います。
ご希望の物件が見当たらない場合は、不動産コンサルティングまでお気軽に問い合わせ下さい。

西宮市東鳴尾町2丁目 新築戸建で募集中の物件

  1. 33.60坪 (111.10㎡)

    5,690万円(184.38万円/坪)

周辺施設

  • ファミリーマート 福田東鳴尾町一丁目店の画像

    コンビニエンスストア

    ファミリーマート 福田東鳴尾町一丁目店

    164m(3分)

  • 鳴尾保育所の画像

    保育園

    鳴尾保育所

    474m(6分)

  • 富士スーパーマーケット鳴尾本店の画像

    スーパー

    富士スーパーマーケット鳴尾本店

    499m(7分)

  • 西宮市立鳴尾東小学校の画像

    小学校

    西宮市立鳴尾東小学校

    564m(8分)

  • 西宮市立鳴尾東幼稚園の画像

    幼稚園

    西宮市立鳴尾東幼稚園

    699m(9分)

  • ローソン 武庫川学院前店の画像

    コンビニエンスストア

    ローソン 武庫川学院前店

    831m(11分)

  • ファミリーマート 武庫川女子大学店の画像

    コンビニエンスストア

    ファミリーマート 武庫川女子大学店

    890m(12分)

  • 関西スーパー 鳴尾店の画像

    スーパー

    関西スーパー 鳴尾店

    898m(12分)

  • ライフォート 西宮上田店の画像

    ドラッグストア

    ライフォート 西宮上田店

    966m(13分)

  • ローソンストア100 LS西宮上田中町店の画像

    生活雑貨店

    ローソンストア100 LS西宮上田中町店

    968m(13分)

  • マックスバリュ 西宮上田店の画像

    スーパー

    マックスバリュ 西宮上田店

    1013m(13分)

  • 西宮市立鳴尾南中学校の画像

    中学校

    西宮市立鳴尾南中学校

    1215m(16分)

  • みのり幼稚園の画像

    幼稚園

    みのり幼稚園

    1221m(16分)

  • メルカードむこがわの画像

    ショッピングセンター

    メルカードむこがわ

    1290m(17分)

  • 西宮鳴尾郵便局の画像

    郵便局

    西宮鳴尾郵便局

    1455m(19分)

  • 三井ショッピングパークららぽーと甲子園の画像

    ショッピングセンター

    三井ショッピングパークららぽーと甲子園

    1479m(19分)

  • サンキューマートららぽーと甲子園店の画像

    生活雑貨店

    サンキューマートららぽーと甲子園店

    1510m(19分)

  • ライフォート 鳴尾店の画像

    ドラッグストア

    ライフォート 鳴尾店

    1847m(24分)

  • どいゆうゆう保育園の画像

    保育園

    どいゆうゆう保育園

    2058m(26分)

  • コペル保育園の画像

    保育園

    コペル保育園

    2068m(26分)

近隣の物件

  1. 西宮市上田東町

    3LDK (162.03㎡)

    4,980万円

  2. 西宮市小松南町1丁目

    3SLDK (146.01㎡)

    4,880万円

  3. 西宮市苦楽園三番町

    4LDK (127.64㎡)

    2,000万円

  4. 西宮市南甲子園2丁目

    4LDK (122.64㎡)

    5,980万円

よく見られている物件

  1. 神戸市灘区城の下通3丁目

    2LDK (83.38㎡)

    1,950万円

  2. 神戸市東灘区田中町4丁目

    3LDK (86.91㎡)

    4,320万円

  3. 神戸市灘区下河原通4丁目

    3LDK (121.58㎡)

    5,680万円

  4. 神戸市灘区岩屋中町1丁目

    3LDK (68.29㎡)

    1,680万円

西宮市東鳴尾町2丁目 新築戸建

お気軽にお問い合わせください

無料お問い合わせ

不動産コンサルティング株式会社

078-871-6700

9:00~19:00

(休:水曜日 第2、第4火曜日)